

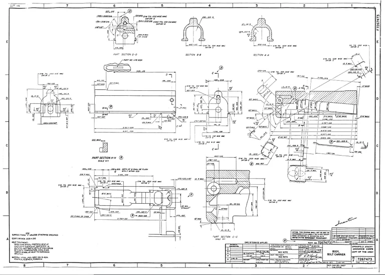
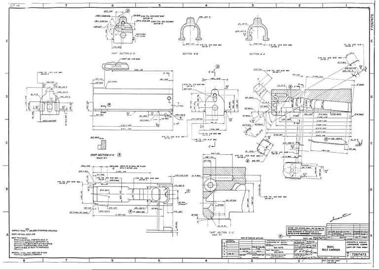
Not something you see everyday - the T-48. A US version of the FN FAL. Only a partial TDP, but still very cool.
Join the community at thegatalog.com
Related to This Release


Professor Parabellum Library (Vol 1-24)


Enfield No 1 MK 3 Technical Data Package


Sten MKII Blueprint Pack


Ruger MK1 Recevier Drawing

